1/6 : Residentie DENDERHOF 2-slpk-app met terras + autostaanplaats
Mooi appartement op de 2de verdieping in rustige buurt, vlakbij het natuurreservaat De Gerstjens.
Rustige toplocatie op wandelafstand van het centrum en treinstation met directe verbinding naar Brussel, Brussels Airport en Gent. Makkelijke toegang tot de E40 snelweg.
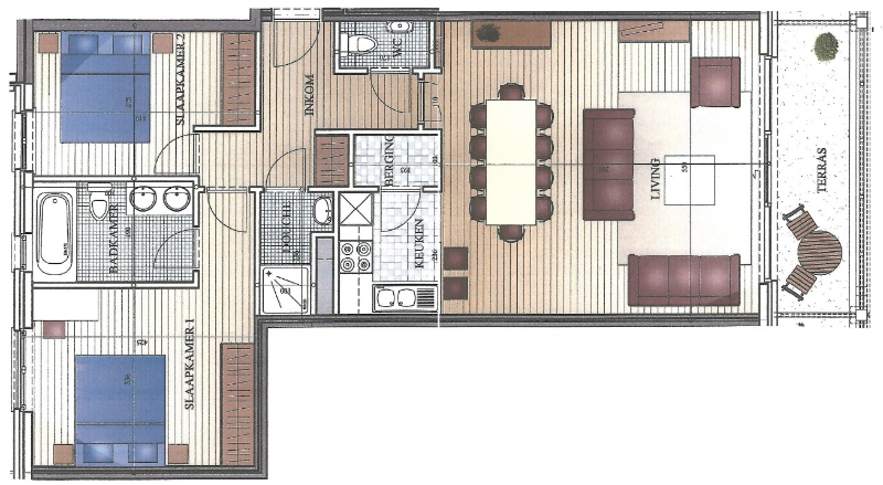
Totale bewoonbare oppervlakte 100 m².
Inkomhal, woonkamer, open keuken, berging, wc, badkamer met ligbad en extra wc, badkamer met douche, 2 slaapkamers, ruim zuidgericht terras vooraan met zitmogelijkheden,
terras achteraan + ondergrondse genummerde privé staanplaats + kelder.
Provisie algemene onkosten : € 50,-/md.
Vrij vanaf 1 juni 2026.